Ehrwürdiges Anwesen sucht neue Nutzer

Ehrwürdiges Anwesen sucht neue Nutzer

01558 Großenhain, Bauernhaus zum Kauf

Kontaktdaten

Jürgen Richter, Sparkasse Meißen

Objektdaten

  • Objekt-ID
    101-2584
  • Objekttypen
    Bauernhaus, Haus (Ein ehem. Bauernhof mit viel Gestaltungspotential)
  • Adresse
    01558 Großenhain
    Sachsen
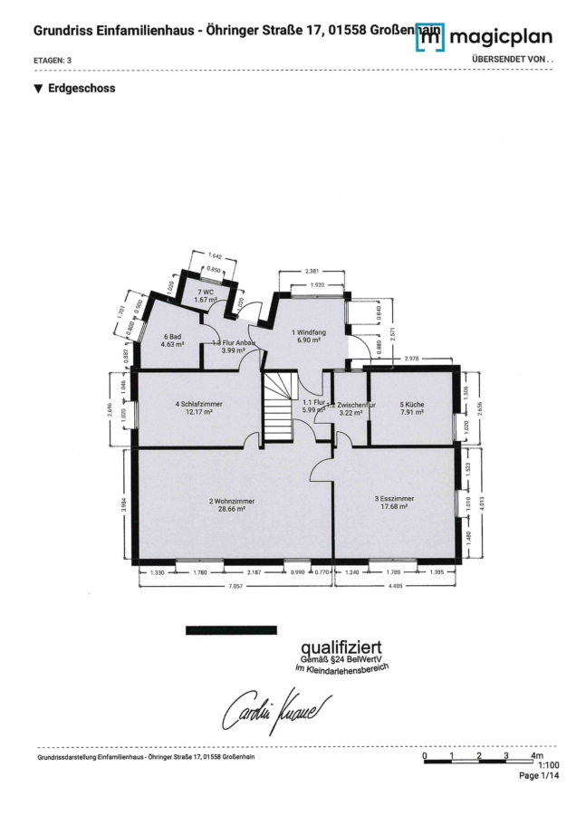
  • Etagen im Haus
    2
  • Wohnfläche ca.
    201,70 m²
  • Nutzfläche ca.
    100 m²
  • Grund­stück ca.
    7.011 m²
  • Zimmer
    10
  • Schlafzimmer
    3
  • Badezimmer
    3
  • Separate WC
    1
  • Heizungsart
    Zentralheizung
  • Wesentlicher Energieträger
    Öl
  • Baujahr
    1900
  • Letzte Modernisierung
    1997
  • Zustand
    sanierungsbedürftig
  • Ausstattung
    Standard
  • Erschließung
    vollerschlossen
  • Bauweise
    Massiv
  • Stellplätze gesamt
    4
  • Verfügbar ab
    nach Vereinbarung
  • Käufer­provision
    3,57 % inkl. MwSt.
  • Kaufpreis
    150.000 EUR

Ausstattung / Merkmale

  • ✓ Abstellraum
  • ✓ Altbau
  • ✓ Außenstellplatz
  • ✓ Badewanne
  • ✓ Dusche
  • ✓ Fliesenboden
  • ✓ Garage
  • ✓ Garten/Gartennutzung
  • ✓ Gäste-WC
  • ✓ Massivbauweise
  • ✓ Satteldach
  • ✓ Separates WC
  • ✓ Tageslichtbad
  • ✓ Teilunterkellert
  • ✓ Teppichboden

Energieausweis

  • Energieausweistyp
    Bedarfs­ausweis
  • Ausstellungsdatum
    20.11.2025
  • Gültig bis
    20.11.2035
  • Gebäudeart
    Wohngebäude
  • Baujahr lt. Energieausweis
    1900
  • Primärenergieträger
    Öl
  • Endenergie­bedarf
    259,00 kWh/(m²·a)
  • Energie­effizienz­klasse
    H

Objekt­beschreibung

Der um 1900 errichtete Bauernhof hat einen soliden baulichen Zustand. Er besteht aus einem teilweise unterkellerten Wohnhaus mit 2 Vollgeschossen und einem ausgebauten DG, daran angebautem Nebengelass mit ehemaligen Stallungen, einer Scheune und weiterem Nebengelass. Hinter der Scheune erschließt sich das großzügige Grundstück mit Garten- und Wiesenflächen.
Am Wohnhaus wurden in den letzten Jahren folgende Modernisierungsarbeiten durchgeführt:
Umstellung der vor 1990 installiertenSchwerkraftheizung auf eine Öl-Heizung in 1994
Einbau neuer Bäder in den 1990er Jahren
Neueindeckung des Daches in 1996
Einbau neuer Isolierglasfenster (Holz) mit Außenrollos in 1997
Darüber hinaus entspricht der bauliche Zustand (Fußböden, Innentüren, Elektroinstallation) im Wesentlichen dem Stand der Technik von vor 1990.
Das Wohnnhaus hat 2 abgeschlossene Wohnungen. Eine WE im EG mit ca. 90 m² und eine 2.WE mit 111,8 m² (OG=74,6 m² und DG=37,2 m²).
Das Anwesen eignet sich zur Nutzung für 2 Generationen mit gleichzeitigem Wunsch nach großflächigem Nebengelass für Hobbys, die viel Platz beanspruchen. Geeignet ist das Objekt auch für Interessenten, die Platz für ihre Pferde suchen. Die großflächige Wiese hinter der Scheune wäre dazu einen optimale Ergänzung..
Mit handwerklichem Geschick und Eigenleistung läßt sich hier der Traum vom zeitgemäßen großzügigen Wohnen auf einem großen Grundstück verwirklichen.

Lage

Die dargestellte Position der Immobilie ist nur eine ungefähre Angabe.

Direktanfrage

Immobiliendaten-Import und Darstellung für WordPress: WP-ImmoMakler

Fordern Sie Ihre persönliche Immobilienbewertung an

Hinterlassen Sie uns ein paar Eckdaten Ihrer Immobilie und wir melden uns zeitnah für Ihre professionelle Immobilienbewertung bei Ihnen.